Settore produttivo di specializzazione (destinazione d’uso)
Tipologia di Contratto/Dismissione:
Stato Occupazionale:
Stato manutentivo:
Ottimo
Procedura richiesta:
Negoziazione Privata
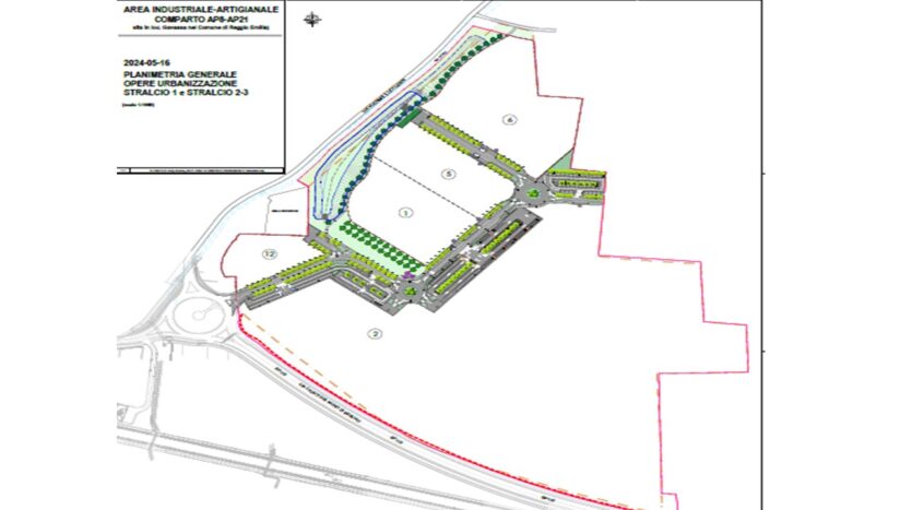
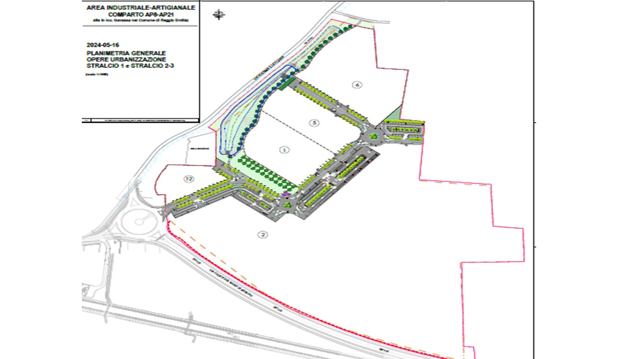
| STATO ATTUALE | Area (mq) |
|---|---|
| Terreno: | 266.000 |
| DA SVILUPPARE | Area (mq) |
|---|---|
| Industriale: | 266.000 |
Anno di Costruzione:
Dato non disponibile
Disponibilità parcheggio:
No
Tipo parcheggio:
Pubblico




